GROUPE D'INGENIERIE IMMOBILIERE INTERNATIONALE Agence
Télécharger la fiche

Appartement 1 pièce(s) 1 chambre(s) 33 m²

Vallauris (06220)
199 000 € Référence 102 026 074

A propos de ce bien

2ᵉ étage à Golfe-Juan / Vallauris199 000 €
Découvrez un appartement rare sur le secteur, idéalement situé à deux pas des plages, du port, et de toutes les commodités.Un emplacement recherché, une résidence calme, et un bien prêt à vivre ou à louer immédiatement.

Les atouts qui font toute la différence
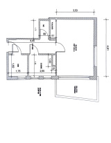
- Appartement lumineux de 33 m² au 2ᵉ étage
-Très belle loggia qui peut s’ouvrir intégralement : véritable espace de vie supplémentaire
- Place de parking collective, un avantage précieux à Golfe-Juan
- WC séparés, salle d’eau moderne
- Séjour confortable + coin nuit bien structuré
- Cuisine fonctionnelle
- Résidence bien entretenue, proximité immédiate du bord de mer
- Aucun travaux lourds à prévoir

Un bien idéal pour :
- Résidence principale
- Pied-à-terre sur la Côte d’Azur
-Investisseur locatif (loyer estimé : 800–950 € / mois en meublé longue durée)
- Achat patrimonial avec forte demande locative dans ce secteur très prisé

Pourquoi ce bien est une opportunité
Un T2 avec loggia + parking à 199 000 €, dans une des zones les plus recherchées entre Cannes et Antibes, reste extrêmement rare.Que ce soit pour y vivre ou pour investir, c’est le type de bien qui se revend très facilement et qui conserve une excellente valeur patrimoniale.

Caractéristiques de ce bien

  • Surface 33 m²
  • carrez 33 m²
  • 1 chambre(s)
  • 1 salle(s) d'eau
  • cuisine américaine (équipée)
  • 1 parking(s)
  • 1 niveau(x)
  • 2ème étage
  • 6 étage(s)
  • ascenseur
  • balcon

Diagnostics énergétiques

DPE
GES

Montant estimé des dépenses annuelles d'énergie pour un usage standard est compris entre 650 € et 1 050 € . Prix moyens des énergies indexés sur les années 2021, 2022 et 2023 (abonnements compris).

Informations financières

Prix de vente honoraires TTC inclus 199 000 €
Charges 75 €

Informations de copropriété

Copropriété Oui
Quote part annuelle des charges 900 €

Autour du bien

  • Commerces et santé
  • Loisirs
  • Ecoles
  • Transports
  • Pratique

Calcul des mensualités

* Champs obligatoires